Obj. 003 – 3 villas – Fontainemelon

1 Villa existante à rénover         
940’000.- avec 1 place de parc      

2 villas mitoyennes «à construire »         
◦ EST 925’000.- avec 1 place de parc
◦ Ouest   955’000.- avec 1 place de parc

2 places de parcs restantes 20’000.-/ place

Villas prêtes en 2027 (date encore à définir)

Le site de Fontainemelon a été choisi pour son emplacement stratégique.

Vous êtes à :
10min en voiture de Neuchâtel
10min en voiture de la Chaux-De-Fonds
10min a pied de la gare des hauts-geneveys
200mètres à pied de l’arrêt de bus de Fontainemelon

La situation des 2 villas est idyllique, dans une situation privilégiée, bénéficiant des points positifs suivants :
1) Ensoleillement idéal
2) Arrêt du bus à 200m
3) Le terrain surplombe la vallée
4) Calme
5) Nature
6) Ecole primaire à 700m

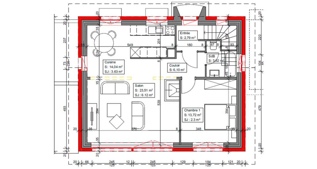
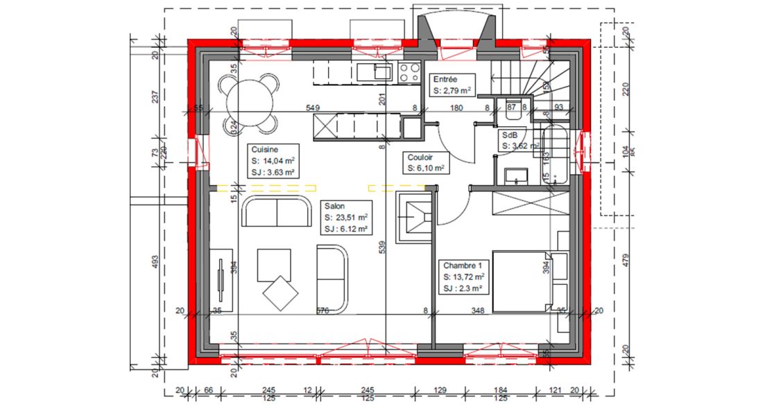
Assainissement d’une villa

Fontainemelon / Chemin du Messeiller

DESCRIPTIF INTÉRIEUR

Rez-de-chaussée supérieur
SAS extérieur d’entrée
Place de stationnement
Couloir d’entrée
Escalier donnant accès à l’étage inférieur
Une salle d’eau, baignoire
Chambre
Espace vie (salon, salle à manger, cuisine) s’ouvrant sur l’extérieur par une porte fenêtre
Terrasse
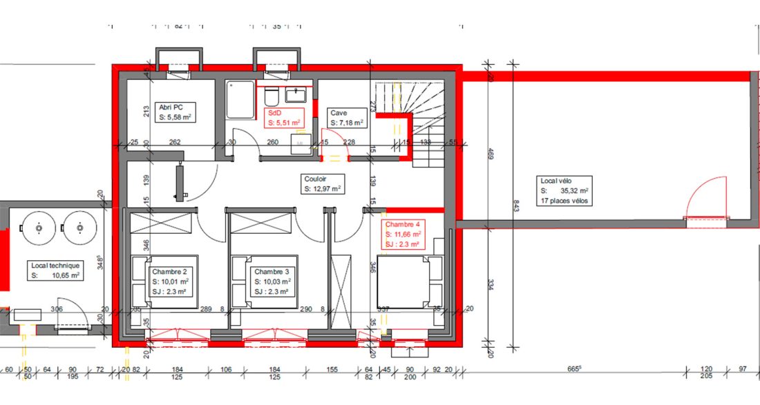
Rez de chaussée inférieure
Escalier donnant accès au rez-de-chaussée supérieur
Couloir de distribution
Abri PC – réduit
Cave
3 chambres
Une salle d’eau, douche y compris alimentation pour colonne de lavage
Un local technique – disponible
Local vélo

DESCRIPTIF EXTÉRIEUR

Accès à la place de stationnement
Terrasse Ouest « soleil couchant »
(Selon plan des aménagements extérieurs et géomètre pour les divisions parcellaires)

DESCRIPTION DES SURFACES HABITABLES

Surfaces en m2 selon plans du permis de construire / les épaisseurs des murs et des gaines techniques peuvent
être augmentées et apparaitre pour l’exécution de l’ouvrage en phase exécution.

Pour plus d’infos, veuillez ouvrir les PDFs ci-après:

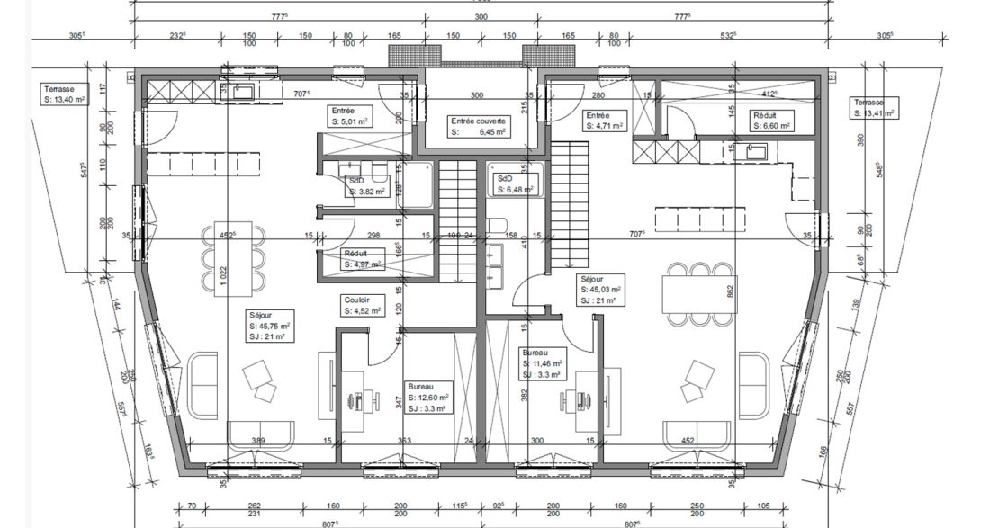
2 villas mitoyennes

Fontainemelon / Chemin du Messeiller

DESCRIPTIF INTÉRIEUR

Rez-de-chaussée supérieur
SAS extérieur d’entrée
Place de stationnement
Couloir d’entrée
Grand Réduit
Escalier donnant accès à l’étage inférieur
Une salle d’eau, douche
Bureau / Chambre
Espace vie (salon, salle à manger, cuisine) s’ouvrant sur l’extérieur par une porte fenêtre
Terrasse
Local vélo
Rez de chaussée inférieure
Escalier donnant accès au rez-de-chaussée supérieur
Couloir de distribution
2 chambres
Une suite parentale avec un dressing et salle d’eau
Une salle d’eau bain y compris alimentation pour colonne de lavage
Un local technique – disponible – cave

DESCRIPTIF EXTÉRIEUR

Accès à la place de stationnement
Balcon et jardin privatif
(Selon plan des aménagements extérieurs et géomètre pour les divisions parcellaires)

DESCRIPTION DES SURFACES HABITABLES (SURFACES NETTES HABITABLES INTÉRIEURES AVEC DÉDUCTION DES
MURS, HAUTEUR MIN 150CM)
Surfaces en m2 selon plans du permis de construire / les épaisseurs des murs et des gaines techniques peuvent
être augmentées et apparaitre pour l’exécution de l’ouvrage en phase exécution.

Pour plus d’infos, veuillez ouvrir les PDFs ci-après: